0. Wohnung im Erdgeschoss kl. Terrasse (Vater Rhein)

For up to 3 People


About the Accommodation

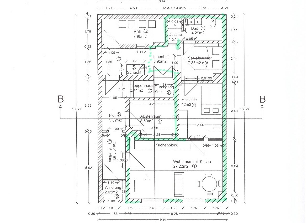
Our apartment "Vater Rhein" on the ground floor is approx. 55 square meters in size and has a very small terrace (approx. 3 square meters)

Rooms and furnishings:

- Living area with couch and large TV, dining area with chairs and a reading chair

- Kitchen with many accessories (coffee machine, dishwasher, oven, fridge, freezer, complete kitchen equipment)

- Bedroom with queen-size-bed (160 x 200 cm), TV and electric shutters, from this room you can access the small terrace and the bathroom (en suite = direct access from the bedroom)

- Third room (connecting room) with closet, desk and sofa bed (140 x 200 cm), where the children's travel cot can also be placed if required Important: The third room and the adjoining bedroom are accessed from the living room. The bathroom can only be accessed via the bedroom (see floor plan). This makes this apartment particularly suitable for individuals, couples and couples with children (alternatively also close family members).

- Bathroom with shower, washbasin, urinal, toilet, towels, hairdryer, toilet paper and small care products

- Small terrace with seating (3 sqm), unfortunately very small, unfortunately it was not possible for us otherwise due to the construction

- Soundproof windows

- Individually adjustable air conditioning in the living area

- If you are traveling with children, a crib and a high chair are of course at your disposal - If you need a washing machine, dryer or iron, please contact us and we will show you where to find them.


Address: Rheinkai 11, 55411 Bingen am Rhein, , Germany

Size: 55.0 m², 3 Rooms, 2 Bedrooms, 1 Bathroom

Beds: 1 Child bed, 1 Queen size bed, 1 Sofa bed

Amenities

  • Towels and bed sheets
  • TV
  • Heating
  • Internet
  • Hair dryer
  • Dryer
  • Shampoo
  • Iron
  • High chair
  • Workplace
  • Coffee machine
  • Kettle
  • Dishwasher
  • Streaming
  • Toilet paper and soap
  • Air conditioning
  • Kitchen
  • Wireless internet
  • Washing machine
  • Terrace
  • Hangers
  • Smoking not allowed
  • Cookware
  • Ethernet
  • Freezer
  • Dining Table
  • Smart TV

Notes

Booking benefits and cancellation 

We always recommend booking through our website, as we manage it ourselves and there are no additional fees for you. On our other sales channels, such as booking.com, we have to factor in these additional costs, which leads to higher prices on these platforms.

If you book via our homepage, you do not have to make an advance payment, but can pay the bill conveniently by bank transfer, card payment or cash on the day of your arrival. If you wish, we can of course also send you an invoice in advance, which you can then pay in advance, just let us know.

If you need to cancel your booking, you can do so up to seven days before the start of your booking.

If you cancel at a later date (i.e. less than 7 days before the start of the booking), 90% of the total travel price will be due for payment (we always recommend that you take out travel cancellation insurance which covers this risk in the event of illness). In this case, we will of course try to rent the booked apartment to someone else in order to minimize the damage. If a replacement booking is possible, this rental income will be deducted in full from your cancellation costs.

If you do not start the trip and have not canceled (no show), 100% of the total travel price will be charged for payment (please always cancel as early as possible or contact us regarding a date change). A date change is possible free of charge at any time up to seven days before arrival, provided that the respective daily rate is identical. Otherwise the price will be adjusted in consultation with you.

Transport

Travel by car:

We have rented two enclosed parking spaces approx. 150 m from our house, which we are happy to make available to you for a small parking fee (€6 per day, €3 on arrival and departure days). Especially in the months from April to October, parking spaces are limited due to increased tourist traffic. Ask for a parking space directly when you make your booking and we will let you know whether one of the two is still available in the period you have booked.

If you do not wish to make use of this, or if none are available, public parking spaces are available (subject to a charge), 80 cents per hour. 

Travel by train:

Get off Bingen Stadt station, only 350 m walk to us

Get off at Bingen Hauptbahnhof station, 1.2 km walk to us, alternatively two stops by bus (line 601 towards Stadtbahnhof, get off at Hospitalstraße) then approx. 100 m to us

Map

Calendar

Arrival
Departure
Adults
Children